服務熱線
021-57488098
ZCZG/ZCZH高溫高壓電磁閥是先導直動型的電磁閥,其通用介質范圍較廣,可分別使用于水、輕油、重油、非腐蝕性氣體及蒸汽等流體,如電站抽氣管道疏水系統和蒸發器的排氣系統中,主要是對管道中的介質進行雙位自動調節和遠程控制。
耐高溫:采用金屬硬密封,提高了使用溫度。介質流體溫度可達425℃
耐磨:選材合理,閥杯和導向套間巧妙地利用流體的潤滑作用,減少磨損。
采用杠桿原理保證線圈和閥體徹底隔離。
電磁閥電磁鐵通電時,連桿被提升,帶動轉軸轉動,副閥打開。由于副閥被開啟,主閥閥杯上部的壓力流體被排出,因此主閥閥杯下部的壓力比上部高,這樣下部的壓力將主閥閥杯向上推開。主閥被打開后,上下壓力相等,閥杯在電磁力、上下壓力作用下,置于平衡狀態,閥門開通。斷電時在銜鐵自重及返回彈簧作用下,關下副閥,副閥關閉后,隨之主閥閥杯上部的壓力升高而將主閥閥杯壓下,達到斷流密封作用,閥門關閉。

| 介質溫度°C | ZCZG | ≤250 | |||||||||
|---|---|---|---|---|---|---|---|---|---|---|---|
| ZCZH | ≤400 | ||||||||||
| 公稱壓力(MPa) | ZCZG | 2.5 | |||||||||
| ZCZH | 4.0 | ||||||||||
| 工作壓差(MPa) | ZCZG | 0~2.5 | |||||||||
| ZCZH | 0~4.0 | ||||||||||
| 公稱通徑(mm) | 10 | 15 | 20 | 25 | 32 | 40 | 50 | 65 | 80 | 100 | |
| 功耗(VA) | 170VA | 480VA | |||||||||
| 電源電壓 | AC220V,其余規格可作特殊訂貨36V、24V、12V | ||||||||||
| 額定流量(KV) | 按JB/T7352-94規定 | ||||||||||
| 泄漏(ml/min) | 按JB/T7352-94.F規定 | ||||||||||
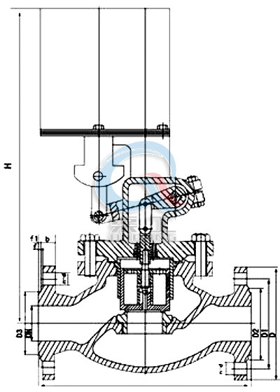
![]() |
|---|
| ZCZG/ZCZH高溫高壓電磁閥 主要外形圖 |
| DN | L | H | D | D1 | D2 | b | f | n-d |
|---|---|---|---|---|---|---|---|---|
| 10 | 160 | 298 | 90 | 60 | 41 | 14 | 2 | 4 -Φ14 |
| 15 | 160 | 298 | 95 | 65 | 45 | 14 | 2 | 4 -Φ14 |
| 20 | 200 | 304 | 105 | 75 | 55 | 16 | 2 | 4 -Φ14 |
| 25 | 200 | 304 | 115 | 85 | 65 | 16 | 2 | 4 -Φ14 |
| 32 | 200 | 314 | 140 | 100 | 78 | 18 | 2 | 4 -Φ14 |
| 40 | 160 | 460 | 150 | 110 | 85 | 18 | 3 | 4 -Φ18 |
| 50 | 300 | 460 | 165 | 125 | 100 | 20 | 3 | 4 -Φ18 |
| 65 | 340 | 433 | 180 | 145 | 120 | 22 | 3 | 8 -Φ18 |
| 80 | 380 | 433 | 200 | 160 | 135 | 22 | 3 | 8 -Φ18 |
| 100 | 430 | 461 | 235 | 190 | 160 | 24 | 3 | 8 -Φ22 |

溫馨提示:
本文中的文字、數據、圖片僅作為參考。需要了解更多ZCZG/ZCZH高溫高壓電磁閥的使用性能、外形結構、安裝尺寸參數、價格,索取
ZCZG/ZCZH高溫高壓電磁閥說明書及產品選型樣本,請聯系我們。