服務熱線
021-57488098
內螺紋Y型過濾器GL11W是輸送介質管道上常用的一種裝置,通常安裝在減壓閥、泄壓閥、定水位閥或其它設備的入口端,用來除去介質中的雜質,以保護閥門及設備的正常使用。當流體進入置有一定規格濾網的濾筒后,其雜質被阻擋,而清潔的濾液則由過濾器出口排出,當需要清洗時,只要將可拆卸的濾筒取出,處理后重新裝入即可,因此,使用維護比較方便。
1、抗污性強,排污方便;流通面積大,壓力損失??;結構簡單,體積小。
2、過濾網材質,有奧氏體304、316、316L。
4、連接形式:內螺紋,承插焊。
| 殼體材質 | 碳鋼、黃銅 | 不銹鋼 |
|---|---|---|
| 濾框濾網材質 | 不銹鋼 | |
| 密封件材質 | 柔性石墨、聚四氟乙烯 | |
| 環境溫度(℃) | -30~425 | -80~450 |
| 連接形式 | 螺紋、承插焊 | |
| 公稱壓力(MPa) | 0.6~5.0(150Lb~600Lb) | |
| 過濾精度(目/in) | 10~300 | |
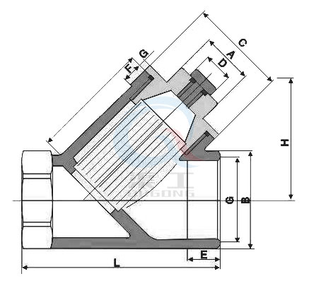
![]() |
|---|
| 內螺紋Y型過濾器外形結構圖 |
| DN(mm) | 公稱通徑G | L | E | B | H |
|---|---|---|---|---|---|
| 6 | 1/4" | 63.5 | 11.5 | 24 | 42 |
| 10 | 3/8" | 64 | 13 | 24 | 42 |
| 15 | 1/2" | 65 | 14 | 26 | 43 |
| 20 | 3/4" | 80 | 15 | 32 | 50 |
| 25 | 1" | 89 | 17 | 41 | 60 |
| 32 | 1 1/4" | 107 | 20 | 49 | 64 |
| 40 | 1 1/2" | 118 | 20 | 56 | 70 |
| 50 | 2" | 140 | 22 | 69 | 88 |

